




今天,据小房君了解,普宁市兴星学校建设项目重新备案通过,总投资2亿,占地面积约94.5亩,将开设幼儿部、小学部、初中部、高中部,设置5000个学位。项目或将于12月开工,最新效果图曝光,一起来了解下:


普宁市兴星学校建设项目
备案项目编号:2210-445281-04-01-917967
项目名称:普宁市兴星学校建设项目
项目所在地:普宁市高埔镇月塘村
项目总投资:20486万元
项目规模及内容:项目规模用地面积为62995平方米(约94.49亩),总建筑面积为136576.90平方米;主要建设教学楼、办公楼、宿舍楼及道路、绿化、排污排水等相关配套设施;开设幼儿部、小学部、初中部、高中部,设置5000个学位。
建设单位:普宁市兴星教育投资有限公司
备案申报日期:2022-10-10
复核通过日期:2022-10-11
项目起止年限:2022-12-01至2027-12-01
项目当前状态:办结(通过)
效果图

普宁兴星学校

据了解,普宁兴星学校为九年一贯制学校,配设国家标准幼儿园,开设15个幼儿班,72个小学班,50个初中班。学校配套教学实验楼,艺术楼,大礼堂,图书馆,多功能报告厅,学生公寓,教师公寓(楼盘详情户型图相册地图),植物园,生物园,餐饮中心,幼儿乐园,幼儿戏水池,标准游泳池,足球场,环形塑胶跑道,羽毛球场,篮球场等。将是粤东地区既有“风景如画”的园林式特色,又有现代建筑风格,高品位、高层次的书香校园。


普宁市兴星学校项目于今年9月9日成功出让,PN2022009地块占地面积62995平方米,以2457万由普宁市兴星教育投资有限公司成功竞得,成交楼面价205.28元/㎡,为50年教育用地。

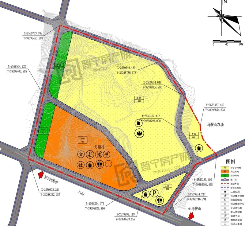
据悉,《高埔镇月塘村营盘山片区单元控制性详细规划(修编)》已于2021年11月完成,并于2021年12月获得政府批复(普府函[2021]154号)。规划范围用地面积17.47公顷(262亩),规划确定该地块功能定位为以中小学用地为主,兼具商住的综合小区。
地块已完成土地征收手续

经省人民政府批准(批准文号:粤府土审(21)〔2022〕7号,批准时间:2022年6月5日),同意普宁市人民政府征收高埔镇月塘经济联合社属下的集体土地2.9992公顷(折44.99亩)。征地补偿总额为292.4220万元。

经省人民政府批准(批准文号:粤府土审(21)〔2022〕8号,批准时间:2022年6月5日),同意普宁市人民政府征收高埔镇月塘经济联合社属下的集体土地3.3003公顷(折合49.5亩)。征地补偿总额为319.5257万元。




