2017年9月份,从普宁市交通运输部门获悉,普宁市汽车总站由于投产多年已严重老化,其规模和车站功能不适应我市客运的发展需求;同时,由于车站位置限制,周边交通疏导困难,造成市区交通经常拥堵严重制约普宁文明城市建设。因此,普宁市有关部门决定易址新建普宁汽车总站。
2018年3月21日,普宁市交通运输局交通枢纽(汽车客运站)建设用地规划许可公示。
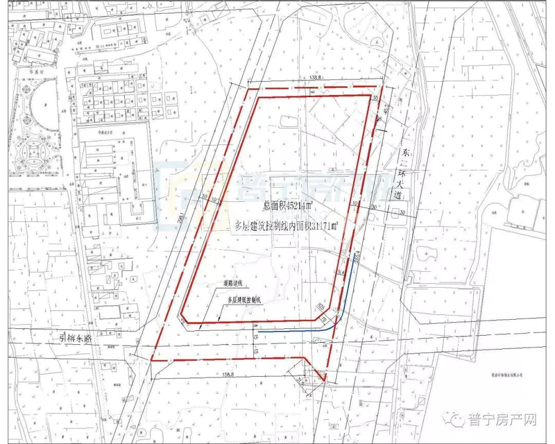
△规划用地面积图
2018年4月17日,普宁市汽车总站新建工程设计方案公示。
△普宁市新汽车总站鸟瞰图
普宁新汽车总站,作为普宁市2018年第一季度率先开工的25个项目之一,一直都受到大家的关注。今天,小编决定实地探访正在建设中的普宁新汽车总站,为大家带来最新工程项目进展。


该项目选址于普宁市区环市东路西侧华溪村,处于市内交通、过境交通和对外交通的汇集地。


项目总用地面积约68亩(其中车站占地面积约55亩,道路负担面积约13亩),按照一级A类的站场标准设计,设计年度平均日旅客发送量不少于10000人次。
总建筑面积10238平方米,建筑包括四层客运站主房7892㎡,换乘连廊1268㎡,单层检测、机修车间465㎡,地下室614㎡,容积率为0.26,绿地率20.00%,使用年限50−100年。
发车泊位数29个,其中长途车发车位21个,城市公交车发车位8个。停车泊位数120个,其中长途客车停车位91个,城市公交车发车位29个,小车机动车停车位39个。


工程投资估算约5678.65万元,工程建设期限为2018年3月至2019年12月。2018年计划投资1955万元,现已完成工程勘察设计施工总承包和监理服务招标工作,预计1至3月累计投入资金约105万元,计划3月底开工。


新汽车总站建成之后,将把市区原汽车站的功能疏解出去,有效地改善普宁市公路运输设施薄弱环节,提高旅客运输组织管理现代化水平,拓展客运事业发展空间,成为展示普宁商贾名城的标志性门户,对促进普宁经济社会发展具有十分重要的意义。





愿工程早日建成
期待新汽车总站的崭新面貌!