今日,普宁市自然资源局以网上挂牌方式出让三宗地块,其中两宗为住宅用地,一宗位于普宁大道,一宗位于北二环大道。本次总出让面积为111.71亩,挂牌截止时间为2019年9月26日。现将有关事项公告如下:
宗地位置:普宁大道(池尾(楼盘详情户型图相册地图)街道多年山段)南侧
土地用途:城镇住宅用地
出让年限:70年


宗地位置:马华南路东侧、光埔路北侧
土地用途:工业用地
出让年限:50年


土地用途:城镇住宅用地
出让年限:70年


1

值得注意的是,本次竞拍的PN2019043地块,与今年7月30日普宁市翔栩房地产投资有限公司以9050万元竟得的PN2019040地块正好紧密相连,该地块最后是否还会被翔栩地产收入囊中?让我们拭目以待!
根据公示可知,PN2019043地块须配套设置垃圾收集间(建筑面积不少于50平方米)、公共卫生间(建筑面积不少于60平方米)、社区养老服务设施(必须于地面设置、建筑面积不少于350平方米)等公共服务设施;
多层建筑控制线用地范围内可结合人防设施设置一至二层地下停车场地及配套设施用房,住宅按每户不少于一部配套停车位(含地面停车场),地面室外停车位数量不应超过占总停车位数的10%,室外停车场应集中设置,并进行绿化处理,配建停车位应100%预留建设充电基础设施的安装条件。

PN2019044地块以房地产整体一并出让,成交后,竞得人须另行负担地上建筑物价值6106.74万元,由竞得人按评估价值6106.74万元付还给原使用权人广东名鳄实业有限公司(开户行及账号:中国民生银行揭阳普宁广达支行698076151)。
该宗地的地上附着物等由地块所在的流沙南街道办事处及东埔村委会负责移交给竞得人。竞得人需依法按程序完善该宗用地附着物建设工程规划报建相关手续,未按规定完善相关手续的,由此造成的后果由竞得人自负。

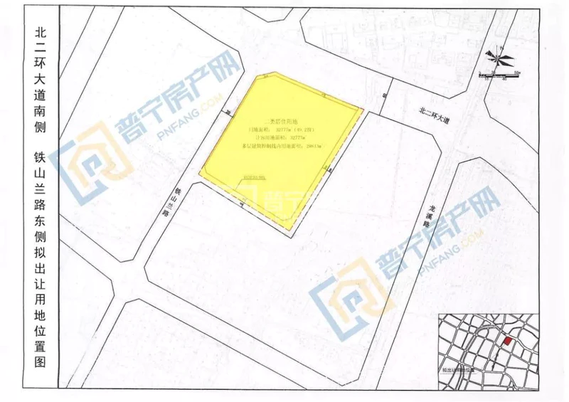
本次竞拍的PN2019045位于北二环片区,根据《普宁市北二环(环城北路、环市东路)两侧重点区域控制性详细规划》,将以北二环大道为主线,以大型公共服务设施与开敞空间为节点,形成商业金融服务中心,创造符合城市发展趋势,具有新时代风貌的城市景观,将规划区打造为现代都会区,可见未来发展前景大好,此地块为北二环片区的第一块土拍地块,会吸引哪些开发商的青睐呢?让我们拭目以待!
PN2019045地块须按相关要求配套设置物业管理用房(配建、建筑面积不小于80平方米)、社区警务室(配建、建筑面积不小于200平方米)、公共卫生间(配建、建筑面积不小于60平方米)、垃圾收集间(建筑面积不少于60平方米)、社区养老服务设施(必须于地面设置、建筑面积不少于500平方米)、微型消防站(建筑面积不少于90平方米)、居民健身设施(配建、建筑面积不少于200平方米)、配电房(建筑面积不少于60平方米,配建于底层或负一层)、水泵房座(设置于建筑物内时,需采取减震防噪措施)等配套公共服务设施;
多层建筑控制线用地范围内可结合人防设施设置一至二层地下停车场地及配套设施用房,住宅按每户不少于一部配套停车位(含地面停车场),地面室外停车位数量不应超过占总停车位数的10%,室外停车场应集中设置,并进行绿化处理,配建停车位应100%预留建设充电基础设施的安装条件。
本次出让的三宗用地
最终将花落谁家?
9月26日,即将揭晓!
敬请期待!
关于这次土拍你有什么想说的?
欢迎底部留言,与小编互动!