一晃眼2018年已过大半
下半年陆续迎来新的楼盘入市
这不,小编听说普宁大道有大动作,
又勾起了小编的好奇之心。
今日,有幸
收到普宁悦府世家项目的邀请,
小编和小伙伴们便迫不及待的出发了。
小编探房,为您解析
不一样的“悦府世家”

环境篇



(营销中心大厅实拍)
下午两点,趁着阳光正好,小编和小伙伴们满怀期待的心情来到了悦府世家,走进宽敞大气、雍容典雅的接待中心,便看到工作人员们各司其责,有的洽谈客户,有的在前台接待,有的在吧台后勤,一切都是那么的井然有序,让人感觉身心舒畅。


(项目沙盘实拍)


(营销中心实拍)
据工作人员介绍,悦府·世家接待中心由大师精心雕琢,融汇新中式与现代风格之美,集新中式的典雅、现代大气于一体,展示区、洽谈区等多个功能空间完美融合,毗邻城市主轴普宁大道,便捷通达,优质物业接待服务,为潮汕人投资置业提供五星级的服务!

规划篇
据小编从普宁市管理局了解,《普宁市城市总体规划(2015-2035年)》于2018年8月13日获省人民政府批复,普宁中心城区道路网规划形成“三横三纵”的交通性主干路系统,“三横”分别为城北大道、普宁大道、池里路;“三纵”分别为环市西路、燎洪路、环市东路。

(中心城区综合交通规划图)
都说交通是经济的先行官,其实,对于渴望升级生活品质的购房者而言,交通也是至关重要的考虑因素。交通的便利与否,大则直接决定了衣食住行的质量,小则影响日常生活的交通成本和时间成本。

(交通示意图)
据了解,悦府世家紧邻城市发展黄金主轴——普宁大道(双向八车道),东临城市主干道广达南路,西接大学路(在建中)可贯穿环城南路、流沙大道等城市要道,核心交通路网覆盖,全速无缝对接潮惠高速、普宁高铁站,助力悦府世家C位出道!

普宁大道片区作为现今普宁发展的城市热土,是普宁未来对外的新名片,而悦府世家坐落于普宁大道之上,所在区域主要规划为城市新中心居住功能区,未来居住氛围浓厚,将是普宁城市人居热土,升值空间巨大。

(项目鸟瞰图)
悦府世家以中式精髓,融入潮汕本土元素,匠心铸就最适合潮汕人居住的社区,将为普宁地产行业带来一股新的潮流,为普宁人民带来全新的居住体验!

(项目效果图)
配套篇
如果住所靠近自然景观资源、市政公园,也是重要的加分项。据工作人员介绍,居住在悦府世家,可推窗瞰莲花山景和大南山(楼盘详情户型图相册地图)景,并且西邻716亩的莲花山公园,尽情享受鲜氧绿意,是业主健身、休闲、娱乐、观光的好去处,并进一步优化悦府世家的人居环境。项目南侧规划的大南山森林公园,未来也将成为普宁的城市绿肺。

居住的需求是满足基本的生活需要,也就是通过衣食住行的现实需求,如果附近还有重点学校,这就具备了优质的人文环境,可能从地段上来说,这就是升值的可能性,更进一步说,对于家中有老人的家庭,最期望的莫过于医院不要离得特别远,所以医院药店等配套也是非常重要的加分项。

悦府世家5分钟达广达美佳乐(楼盘详情户型图相册地图),10分钟畅享万泰汇、星河Coco City等普宁最繁华的商业配套,并且拥有普宁二中、普宁二中实验学校等名校环绕,与悦府世家距离500米的大型三甲级中医院也能为业主的身心健康保驾护航。
户型篇
空间与人的关系,是千百年来居住的主题,不管在古代,还是现代,居家的动静分区,活动动线,敞开与隐私,都是如琢如磨的要素。而悦府世家,深谙此道。

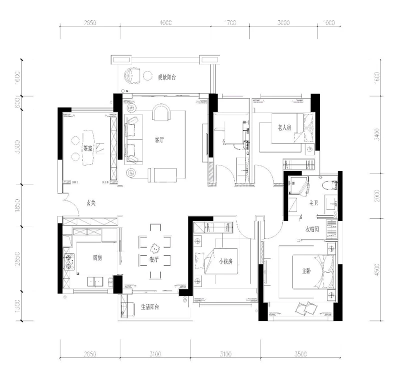
悦府世家拥有大师级倾力雕琢的臻品户型,105-190㎡三至五房新中式奢居,优阔空间,高拓展高得房率,朝南向、双阳台、格局方正、动静分区、入户花园……户型品质达到了一线城市的优秀水平,让您享受阔绰视野和楼间距、双园景观,让您住的舒适、生活开心!

122㎡户型3+1房

106㎡户型3房
*以上户型图涉及的尺寸、数据仅作示意参考,不作为开发商的销售承诺,具体权利义务以双方签订的《商品房买卖合同》为准!
户型,是直接关系居住舒适性、生活品质的大事,所以,买不买房,重点还要看户型!

悦府世家作为一个建筑面积约58万㎡的豪宅社区,不仅有优越地段、高品质的户型,还有约11万㎡新中式园林、3.73超低容积率等高端品质!为普宁人民敬献非凡人居体验!
结语

时间过得飞快,
转眼整个探房的过程也要接近尾声了,
感谢大家观看本期的《小编探房》,
后续会有更多的实地看房的报道!
据工作人员透露,
悦府世家接待中心已盛启!
现诚意登记火热进行中!
想了解悦府世家更详细的资讯,
请关注悦府世家公众号!

本期编辑:普宁小房君,转载请注明来源
项目规划内容来源于悦府世家,最终解释权归悦府世家所有