

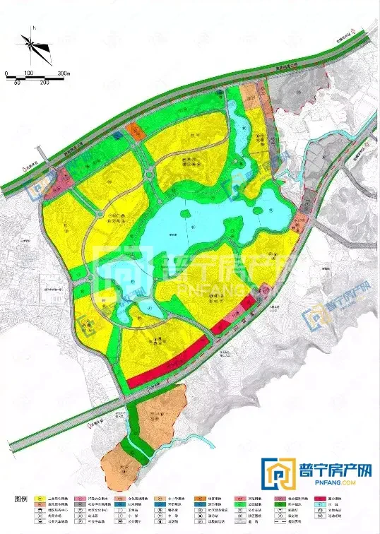
一、项目区位 调整地块位于普宁市中心城区西南部,距离普宁市区中心约3公里。地块北面靠近寒妈水库,西面临近云落镇区,南面靠近324国道。本次地块调整涉及到三个地块,分别是:B-01-08、B-01-12、B-01-14,其中,B-01-08地块规划用地面积47325㎡,B-01-12地块规划用地面积8489㎡,B-01-14地块规划用地面积7350㎡。
二、调整必要性 (1)区域层面:在普宁市域“三城三区三片”的空间格局中,本项目位于老城的生态文化片区,主要以生态旅游、生态宜居为发展重点。 A、西南地区旅游服务的重要节点:本次调整地块所在区域位于西南地区与中心城区的交界处,在城乡协同发展轴的串联下,调整地块将会是该片区旅游服务的重要节点。 B、西南地区对外的重要窗口:调整地块位于揭惠高速与324国道之间,是通往中心城区与其他片区的必经之路,同时也是该片区对外服务的一个重要窗口。 由于项目所处位置以及所扮演的角色和功能需求,本项目需要打造具有地方特色的建筑空间形态、提升生态文化片区的综合形象。 (2)中心城区层面:本次调整地块位于中心城区中的生态休闲片区,该片区是普宁西南部的经济中心,是整个普宁唯一与生态相结合,具有生态休闲功能和生态体验条件的区域。由于调整地块周边的持续开发,片区居住人口的逐年增加,再加上优越的生态条件和旅游资源,西南片区急需规划建设一处规模较大且兼顾旅游服务和生活服务的综合性服务中心。 (3)片区层面:本次调整地块临近云落镇镇区,地块周边有星河明珠湾、保利和府等宜居生活组团,地块可联动周边的社区服务,为周边的宜居生活组团提供配套综合服务设施;联动周边中小学的教育资源,发展教育IP和早教项目;联动周边丰富的旅游资源,发展具有地域特色的旅游服务中心。为满足周边的服务需求,本次调整地块需要满足以下两方面的要求: A、提供多元化的配套设施 B、打造具有丰富地域特色的体验空间 综合以上分析,营造更多样化、人性化尺度的建筑空间,更有利于提升地块的综合价值,就需要对其建筑密度进行相应的提高。
三、主要调整内容 本次主要针对三个地块的建筑密度进行调整,具体如下: B-01-08地块:建筑密度由30%调整为45% B-01-12地块:建筑密度由30%调整为45% B-01-14地块:建筑密度由30%调整为45%
四、地块调整结论 (1)社会影响:本项目将打造集优质生活配套、高品质旅游服务、创意文娱于一体的优质服务型项目,通过打造丰富的建筑空间,为周边居民及游客提供更优质的休闲购物体验。 (2)空间影响:本项目有利于提升寒妈水库片区整体形象。同时,未对周边建筑的日照及消防产生影响。 (3)交通影响:本项目仅对建筑密度作出调整,容积率及建筑高度保持不变,未对片区周边交通出行量产生影响。 (4)市政影响:本项目仅对建筑密度作出调整,容积率及建筑高度保持不变,未对险排水、电力、通信、燃气的需求量产生影响,按原规划提高相关市政设施及管网建设后可满足地块使用的需求。 (5)方案校核:根据方案的规划校核,本项目建筑密度由30%提高至45%,在建筑布局、消防等方面均能满足相关规划规范要求。 综上所述,本地块建筑密度由30%调整为45%具有可行性。

